SigmaNEST rešenja za proizvodnju od limova, cevi, profila, pločastih i šipkastih materijala
Krojne liste / nesting i programiranje CNC rutera, lasera, waterjetova, testera..
U proizvodnji auto prikolica, kao i u poslu nadgradnje vozila, uglavnom nema "serijskog" proizvoda te između svakodnevnih nesporazuma sa klijentima, izmena, grešaka, škartova, brušenja i varenja, i efikasne proizvodnje i profita stoji samo softver koji može da isporuči:
- brzu skicu proizvoda prema upitu klijenta
- automatizaciju dimenzionisanja elemenata i standardnih sklopova
- precizne informacije o materijalima i količinama za kreiranje ponude
- detalje za jednostavnu proizvodnju bez škartova i montažu bez problema
SolidWorks - jedini softver koji će vam trebati
Projekat, proračuni, vizuelizacija, elektrošemiranje...
SolidWorks rešenje za nadgradnje vozila
U predstavljanju nove verzije softvera za 2018. godinu SolidWorks je kao demonstraciju svojih mogućnosti izabrao primer projekta TRAKKA kampera.
Složenost kampera zbog velikog broja materijala, detalja, originalne geometrije koju treba uklopiti tokom montaže, kabliranja, ugradnje raznih mehanizama, itd, pokazuje da je reč o savršenom rešenju koje može da prati rast vašeg biznisa, od projektovanja osnovnih konstrukcija kao što su automobilske prikolice, preko nešto složenijih nadgradnji na kombijima i kamionima, do veoma zahtevnih adaptacija vozila i prikolica najrazličitije namene: hladnjače, kamperi, dizalice, vozila za namensku industriju...
Pogledajte video o TRAKKA projektu ili saznajte više na linku ovde (SolidWorks 2018 - 20 kratkih video demonstracija).
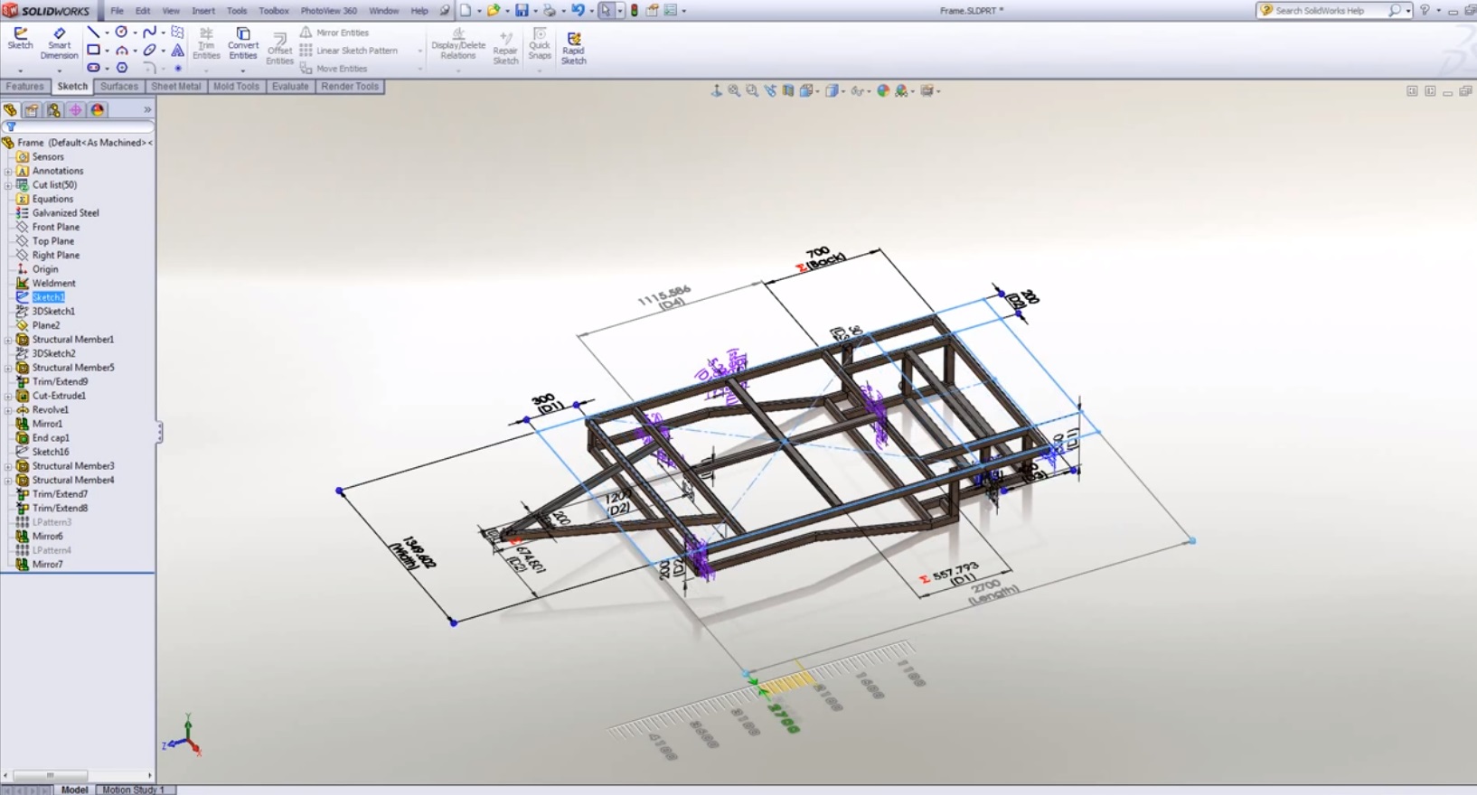
Projektovanje auto prikolice u SolidWorks softveru
SolidWorks 3D CAD
Imate standardne profile od kojih proizvodite prikolice? Imate standardna rešenja konstrukcije? Ali, klijent traži specifične dimenzije i nikada ne znate kolika će tačno biti sledeća konstrukcija prikolicu koju treba da proizvedete? SolidWorks 3D CAD predstavlja vam alat koji će vam rešiti te probleme za nekoliko minuta...
5 minuta za kompletnu skicu prikolice
Nacrtajte koncept konstrukcije brže nego na papiru

Minut prvi
Jednostavno kreiranje koncepta geometrije uz softverske funkcionalnosti koje vam omogućavaju jednostavan i brz rad: softver razume vaše namere u smislu dimenzija, pravila geometrije (upravne i paralelne linije), itd.

Minut treći
Definisali ste konstrukciju bez zamaranja određivanja preciznih dimenzija u ovoj fazi jer vam i nisu potrebne da biste dobili zaokružen koncept proizvoda.

Minut peti
Skica je završena i uz par klikova za definisanje samih elemenata cele konstrukcije naći ćete se u 3D modelu gde dalje dorađujete proizvod...
Parametarska optimizacija proizvoda
Brza izmena = brza i precizna ponuda za klijenta

Osnovni predefinisan model
Rešili ste dizajn proizvoda koji će vam odgovarati za celu grupu mogućih varijacija u dimenzijama prema zahtevu klijenta? Definišite model koji će biti spreman za brze izmene koristeći parametarsko modeliranje.

Definisanje specifičnih izmena
Skratite ili produžite prikolicu zadržavajući dimenzije i tip prečnika profila koje imate na stanju i koristite u proizvodnji, definišite nove mere za sečenje samo onih segmenata koje ćete menjati.

Definisanje ograničenja i pravila
Odredite u kom trenutku će dimenzija same prikolice, umesto skraćenja dimenzija segmenata, prosto izbaciti segmente i elemente koji vam više nisu neophodni.
Konačni model za ponudu i proizvodnju
Sa dobro osmišljenim dizajnom inženjer će za desetinu minuta projektovati novi proizvod i generisati dimenzije, specifikaciju materijala, masu, dimenzije, itd. Sve ove informacije omogućavaju prodaji da brzo isporuči ponudu, dok će proizvodnja daleko brže i uz manje grešaka i škarta završiti nov proizvod.
Naravno, zavisno od potreba, kompleksnosti projekata, tipičnih klijenata, želje za većom efikasnosti i za unapređenim kvalitetom radi unapređenja konkurentnosti, u ovaj proces mogu se uključiti i rešenja za simulaciju konstrukcije, vizuelizaciju proizvoda, generisanje izlazne dokumentacije (uputstava za montažu, servisnih uputstava, kataloga delova), ali i procena vremena za pojedinačne operacije i ukupnog vremena za izradu proizvoda...

Pogledajte ceo video
Da biste se uverili koliko je zaista jednostavno raditi u SolidWorks softveru pogledajte ceo video i prolazno vreme za koje se dolazi od praznog "papira" do skice, ili od standardnog modela do produžene, sužene ili skraćene varijante...
Primer iz Srbije
Uniplast Serbia, Šabac


Uniplast iz Šapca
Kompanija Uniplast Serbia iz Šapca uspešno vrši i najkompleksnije nadgradnje i prilagođavanja auto prikolica, kombi vozila, kampera, hladnjača, dizalica, mobilnih antenskih sistema i agregata, kamiona i šleperskih prikolica za brojne klijente iz Srbije i inostranstva.
Kako je Uniplast pomoću SolidWorks softvera uspeo značajno da poveća proizvodne kapacitete sa istim resursima?
DriveWorks - Najbrže do novog proizvoda
Specijalizovano rešenje za automatizaciju rada u solidWorks softveru
DriveWorksXpress - besplatno uz SolidWorks
DriveWorks je specijalizovano rešenje koje služi za potpunu automatizaciju procesa projektovanja u SolidWorks softveru i dostupan je u tri paketa od kojih je osnovni paket besplatan uz svaku SolidWorks 3D CAD licencu.
Jedan softver za sve vaše projekte
Nije važno koliko je projekat složen, ne morate ostati samo u domenu proizvodnje prikolica. Sa efikasnim softverom kao što je to SolidWorks, vi možete osvajati nove proizvode bez ugrožavanja tekućih proizvodnih procesa.


Projektovanje za proizvodnju i nadgradnju auto prikolica